Gites Carbuccia En Corse Avec Piscine Chauffee
Preview only — see all hotel photos
See all 65 photos
عرض الفندق على الخريطة
Gites Carbuccia En Corse Avec Piscine Chauffee
تقع Gites Carbuccia En Corse Avec Piscine Chauffee على بعد حوالي 10 دقائق بالسيارة من Punta Sant'eliseo، وتوفّر للضيوف الواي فاي للعمل أو الترفيه. تحتوي الشقة على بركة السباحة الخارجية والحديقة.
من الأماكن الشهيرة في المنطقة كوبولاتا على بُعد 10 دقائق بالسيارة.
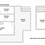
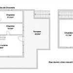
تم تأثيث Gites Carbuccia En Corse Avec Piscine Chauffee بالصالون، وتتميّز بوسائل راحة مثل مرافق لكي الملابس والمكواة واللوح الكيّ، فضلاً عن جهاز التلفزيون. استمتع براحة الحمام في مكان الإقامة المزوّد بمجفف الشعر. ستجد أيضًا المرحاض المنفصل وحوض الاستحمام والدوش.
بالإضافة إلى مرافق الخدمة الذاتية مثل المطبخ الكامل، توفّر الشقة أيضًا منطقة لتناول الطعام. يقع مطار أجاكسيو على بعد 20 كم بالسيارة. للضيوف الذين يتمتعون بأسلوب حياة نشط، يتم توفير الغوص والرحلات على الأقدام. هناك الشرفة للاسترخاء.
المرافق
المميزات الرئيسية
- واي فاي
- مناسب للأطفال
مرافق الفندق
- واي فاي
- غلاية الماء الكهربائية
- أدوات المطبخ
- فناء خارجي للأكل
- منطقة الجلوس
- طاولة الطعام
- مرافق الكي
- غسالة الملابس
- أسرة الأطفال
السياسات
خريطة
المعالم السياحية المحلية
المطارات
- مطار أجاكسيو (20 كم)